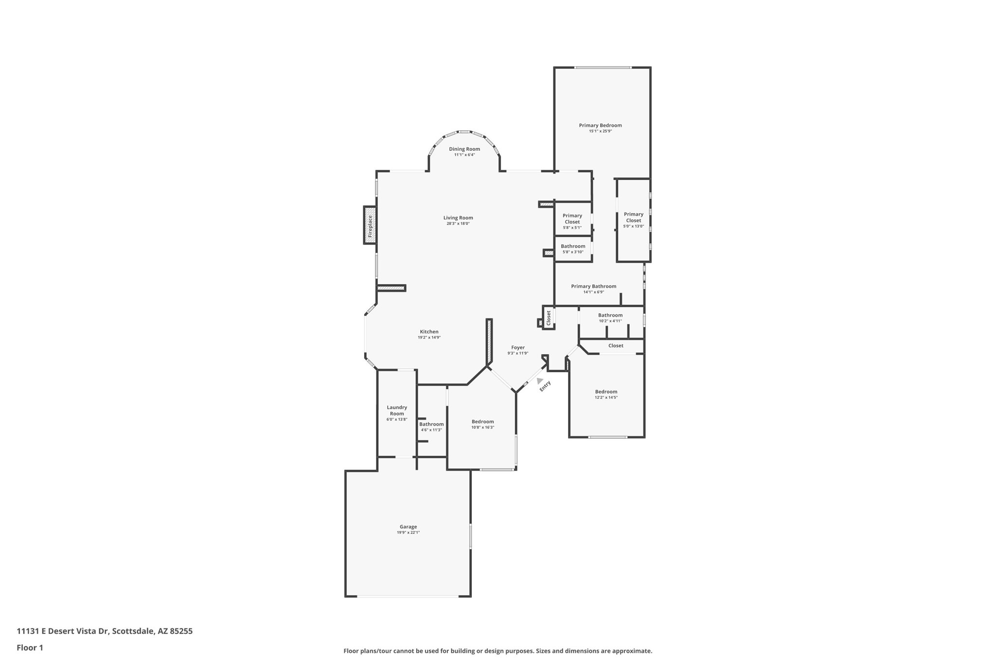
11131 E Desert Vista Dr
Scottsdale, AZ 85255

Scroll to Content

Images

Videos

Floor Plans

3D Tour

Contact

Feel free to contact us for more details!

Laura Lucky

Russ Lyon Sotheby's International Realty

+14803905044

all.lucky@russlyon.com